本网讯(通讯员 胡长威 刘佳宁)2023年5月23日,第五届全国大学生结构设计信息技术大赛落下帷幕,我校建筑工程学院胡长威老师指导的刘佳宁获A组(研究生、本科组)二等奖1项,胡成林、周鑫磊和袁木燕、任俊杰团队获得A组(研究生、本科组)三等奖3项。




刘佳宁团队、胡成林团队、周鑫磊团队、袁木燕团队获奖证书
据悉,本次大赛是由中国土木工程学会教育工作委员会、清华大学土木水利学院主办,华南理工大学、哈尔滨工业大学、西安建筑科技大学协办,是国内高校土木工程专业领域内最具影响力的赛事之一。以“数字建筑,智慧建造”为主题,内容分为两部分,第一部分为商住综合体结构建模及计算,第二部分为门式钢构厂房主体结构框架建模及计算,赛题难度与第四届相比大幅度提升,旨在促进高等学校土木工程专业及相关专业人才培养模式改革,提高高等学校土木工程专业及相关专业创新型、应用型人才的培养质量,推进高校BIM实践教学,提高大学生的科技创新能力和实践技能,为各学校大学生搭建同台竞技的舞台。

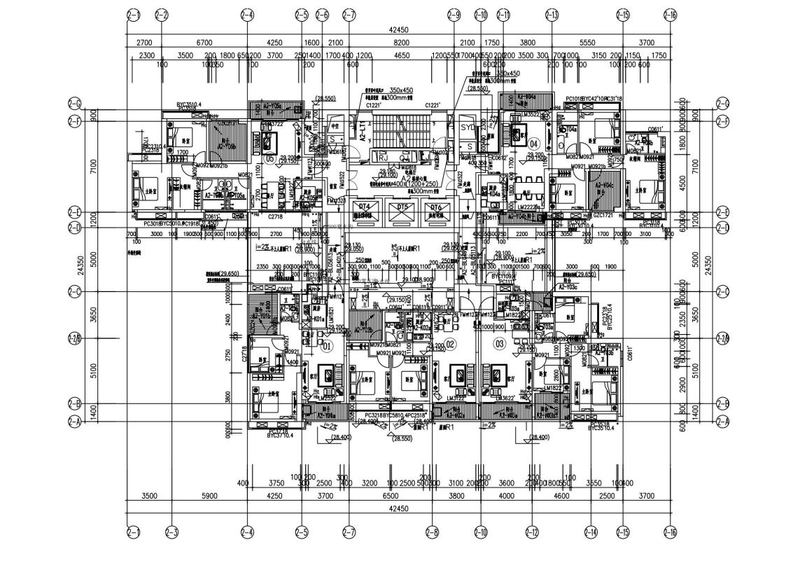
住宅塔楼标准层平面图

单层钢结构厂房平面图
我校高度重视此次赛事,并于去年12月份成功举办了校内选拔赛。指导教师坚持以赛促教,为同学们进行专题培训,涉及《混规》、《高规》、《抗规》、《荷规》、《地规》和《钢标》等多本核心规范。胡长威老师针对每一支队伍的赛题设计进行悉心指导,坚持以赛促学、以赛促教,将学科竞赛融入人才培养的全过程,努力践行为党育才的宗旨,为培养具有良好科学素养和探索精神的新时代建筑人才不断“添油助力”。